Код: INV1060C
Код: INV1060C
Тип упаковки:
Кол-во в упаковке: 3
Ед. изм: м
Вес, кг: 6,840
Объем, м3: 0,06030
?

Ширина:

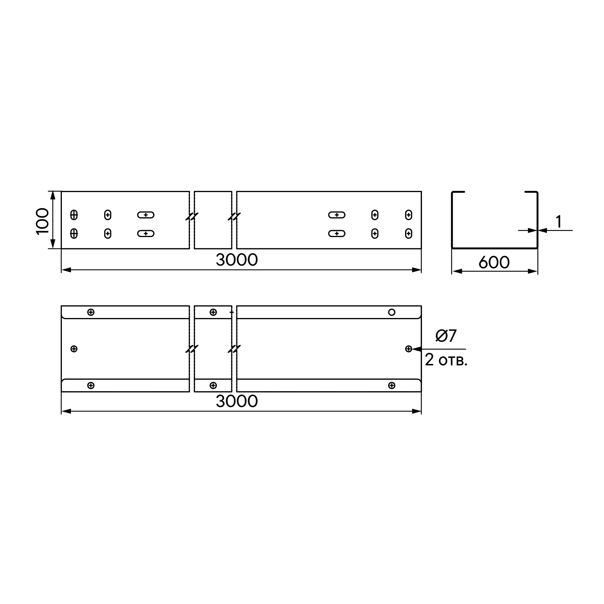
Неперфорированные листовые лотки ДКС применяются для прокладки кабеля как в помещении, так и на открытом воздухе. Лотки в специальном исполнении "Нержавеющая сталь" имеют высокую устойчивость к воздействию соли, воды, кислот, химических веществ и нагреву, и служат в 1,5-3 раза дольше, чем оцинкованные крышки. Толщина стали – 0.8 мм, высота лотка – 100 мм, ширина – 600 мм, длина – 3000 мм. Лотки "I5 Combitech" высотой 100 мм соединяются встык с помощью соединительных пластин IGH10. Для соединения листовых лотков используются винты CM010612INOX и гайки CM100600INOX
Подробнее
Неперфорированные листовые лотки ДКС применяются для прокладки кабеля как в помещении, так и на открытом воздухе. Лотки в специальном исполнении "Нержавеющая сталь" имеют высокую устойчивость к воздействию соли, воды, кислот, химических веществ и нагреву, и служат в 1,5-3 раза дольше, чем оцинкованные крышки. Толщина стали – 0.8 мм, высота лотка – 100 мм, ширина – 600 мм, длина – 3000 мм. Лотки "I5 Combitech" высотой 100 мм соединяются встык с помощью соединительных пластин IGH10. Для соединения листовых лотков используются винты CM010612INOX и гайки CM100600INOX
Подробнее
Цвет Серый
Ширина, мм 600
Модель/исполнение Без соединит. разъема
Высота, мм 100
Толщина материала, мм 1
Длина, мм 3000
Материал Нержавеющая сталь
Полезное сечение, мм² 16200
Защитное покрытие поверхности Необработанная
Перфорированная боковая стенка Нет
Перфорация в основании для монтажа Нет
Исполнение для больших расстояний (усиленный) Да
Подходит для обеспеч. целостности цепи (огнестойкость) Да
Нержавеющая сталь травлёная Да
Вид/ марка материала Нержавеющая сталь V2A (AISI304)
Ширина 600 мм
Высота 100 мм
Длина 3000 мм
Толщина 1 мм
Материал Нержавеющая сталь AISI 304
Тип лотка Лотки из нержавеющей стали - "I5 Combitech"
Тип продукции Неперфорированные лотки