Переходник RRC симметричный 150/100 H50 в комплекте с крепежными элементами и соединительными пластинами, необходимыми для монтажа, цинк-ламельный
Код:
36309KZL
Код:
36309KZL
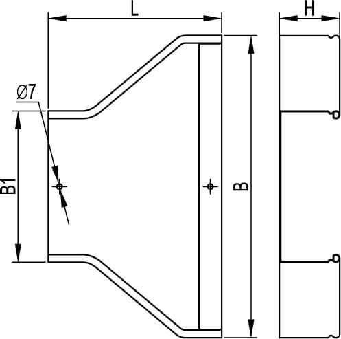
Элементы, входящие в состав системы "S5 Combitech" позволяют предусмотреть любые особенности проектирования и монтажа трассы. При построении кабельных трасс может возникать ситуация, когда требуется увеличить или уменьшить ширину лотка. Для этого применяется переходник (редукция) – аксессуар, имеющий разную ширину в начале и в конце. Симметричная редукция – аксессуар, симметричный относительно средней линии, проходящей вдоль его длины.
Этот элемент обеспечивает расширение кабельной трассы со 100 мм до 150 мм или же ее сужение. Максимальная степень пыле- и влагозащиты – IP 44 (при использовании вместе с крышкой и уполотнителями). Высота - 50 мм. В состав комплектного аксессуара входят необходимые крепежные элементы и соединительные пластины. Аксессуары в исполнении "Цинк-ламель" имеют специальное покрытие на основе химически активной магниевой смолы, в которую добавлены хлопья алюминия и цинка. Такое покрытие обеспечивает электрохимическую и барьерную защиту от коррозии. Показатели коррозионной стойкости цинк-ламельного покрытия ДКС аналогичны показателям горячеоцинкованного покрытия.
Подробнее
Этот элемент обеспечивает расширение кабельной трассы со 100 мм до 150 мм или же ее сужение. Максимальная степень пыле- и влагозащиты – IP 44 (при использовании вместе с крышкой и уполотнителями). Высота - 50 мм. В состав комплектного аксессуара входят необходимые крепежные элементы и соединительные пластины. Аксессуары в исполнении "Цинк-ламель" имеют специальное покрытие на основе химически активной магниевой смолы, в которую добавлены хлопья алюминия и цинка. Такое покрытие обеспечивает электрохимическую и барьерную защиту от коррозии. Показатели коррозионной стойкости цинк-ламельного покрытия ДКС аналогичны показателям горячеоцинкованного покрытия.
| Модель/исполнение | С соединит. разъемом в комплекте |
| Защитное покрытие поверхности | Гальваническое/электролит. цинк-никелевое покрытие |
| Конструктивное исполнение | Симметричная редукция |
| Ширина (большая), мм | 150 |
| Ширина (уменьшения), мм | 100 |
| Материал | Сталь |
| Высота кабельного лотка, мм | 50 |
| Нержавеющая сталь травлёная | Да |
| Исполнение для больших расстояний (усиленный) | Да |
| Подходит для обеспеч. целостности цепи (огнестойкость) | Да |
| Тип продукции | Монтажные аксессуары |
| Тип аксессуара | Переходник симметричный |
| Высота | 50 мм |
| Толщина | 0.8 мм |
| Материал | Сталь с цинк-ламельным покрытием |
| Ширина | 150 мм |